锦华装饰
15250817358

发布时间:2025-09-28 14:16:36阅读次数:43次
现代简约-金科玖珑悦-三室两厅一厨两卫-133㎡-装修实景图

装修模式:整装 风格:现代简约 人气:43
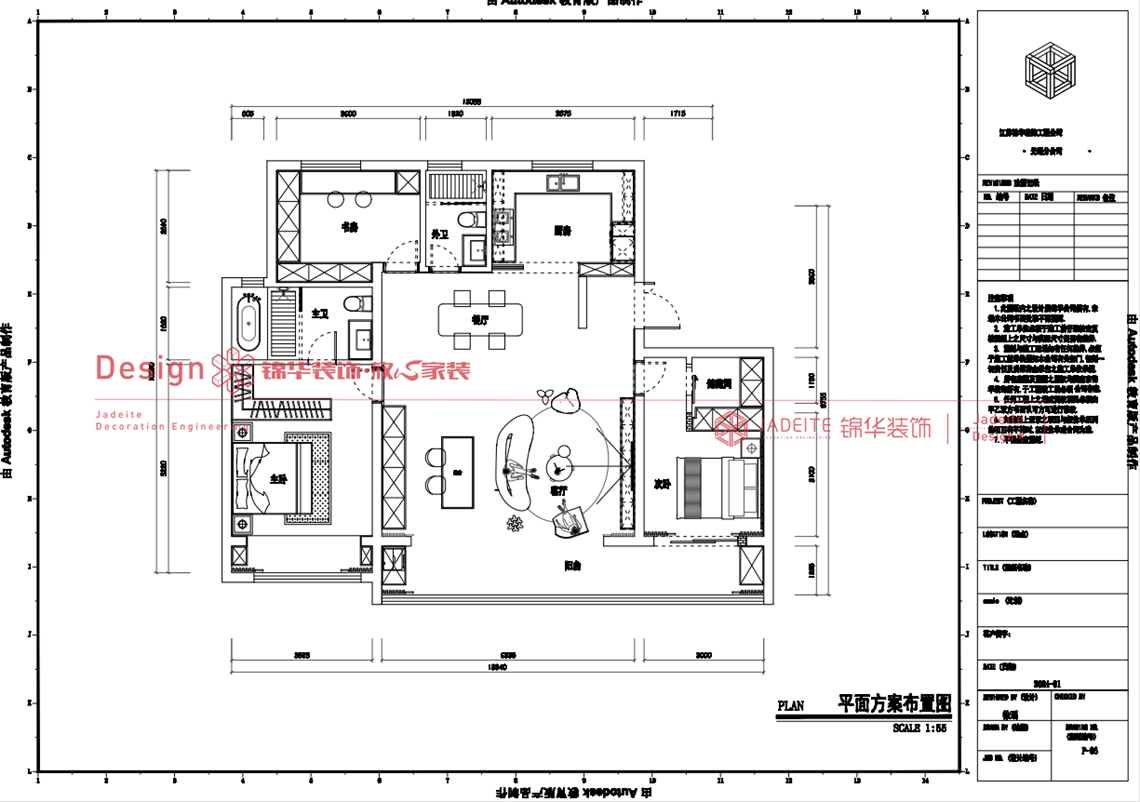
户型:三室两厅 片区: 装修面积:

设计师:徐瑶

公   司:凤凰店

电   话:15250817358

设计师级别:堂杰驻店高级

收费标准:公寓150元/㎡;别墅210元/㎡ (纯设计:增加100元/㎡,如需施工及后期服务另加50元/㎡;纯配饰或软饰设计服务统一250元/㎡;效果图 600元/张)

QQ: 点击这里给我发消息

设计理念:以人为本从文化、艺术、自然、技术、科学与生活的关系去观察吸取,在通过对生活价值、生活观念的沟通和理解,塑造一个多元面貌的空间。

预约在线洽谈

本案的核心亮点,在于构建了一个 “为原创设计发声”的收藏级宅邸。我们坚信,真正的现代奢华,并非物质的堆砌,而是对推动生活美学的原创思想进行投资。

在空间架构上,我们以克制的开放式布局和无主灯设计,为“主角”留出充分的展示舞台。在此基础上,我们进行了两次意义深远的选择:一是与 “简铭” 这样的高端定制品牌深度共创,其不仅解决了收纳功能,更以卓越的工艺和独特的设计语言,本身就是一件值得收藏的“室内建筑”;二是精心甄选如 “普拉达” 等品牌的原创家具,我们为之买单的,远非一个商标,而是其背后传奇设计师的生命历程、突破性的工艺探索,以及每一件作品所承载的时代精神。

最终,这个家超越了居住本身,化身为一个动态的、充满故事性的“私人设计展厅”。它清晰地宣告了业主与设计师共同秉持的价值观:我们珍视并愿意为每一个饱含心血与智慧的原创故事付费,因为正是这些故事,定义了生活的质感与高度。

现代简约-金科玖珑悦-三室两厅一厨两卫-133㎡-装修实景图装修-三室两厅-现代简约

现代简约-金科玖珑悦-三室两厅一厨两卫-133㎡-装修实景图装修-三室两厅-现代简约

现代简约-金科玖珑悦-三室两厅一厨两卫-133㎡-装修实景图装修-三室两厅-现代简约

现代简约-金科玖珑悦-三室两厅一厨两卫-133㎡-装修实景图装修-三室两厅-现代简约

现代简约-金科玖珑悦-三室两厅一厨两卫-133㎡-装修实景图装修-三室两厅-现代简约

现代简约-金科玖珑悦-三室两厅一厨两卫-133㎡-装修实景图装修-三室两厅-现代简约

现代简约-金科玖珑悦-三室两厅一厨两卫-133㎡-装修实景图装修-三室两厅-现代简约

现代简约-金科玖珑悦-三室两厅一厨两卫-133㎡-装修实景图装修-三室两厅-现代简约

现代简约-金科玖珑悦-三室两厅一厨两卫-133㎡-装修实景图装修-三室两厅-现代简约

现代简约-金科玖珑悦-三室两厅一厨两卫-133㎡-装修实景图装修-三室两厅-现代简约

现代简约-金科玖珑悦-三室两厅一厨两卫-133㎡-装修实景图装修-三室两厅-现代简约

现代简约-金科玖珑悦-三室两厅一厨两卫-133㎡-装修实景图装修-三室两厅-现代简约

现代简约-金科玖珑悦-三室两厅一厨两卫-133㎡-装修实景图装修-三室两厅-现代简约

现代简约-金科玖珑悦-三室两厅一厨两卫-133㎡-装修实景图装修-三室两厅-现代简约

现代简约-金科玖珑悦-三室两厅一厨两卫-133㎡-装修实景图装修-三室两厅-现代简约

现代简约-金科玖珑悦-三室两厅一厨两卫-133㎡-装修实景图装修-三室两厅-现代简约

现代简约-金科玖珑悦-三室两厅一厨两卫-133㎡-装修实景图装修-三室两厅-现代简约

现代简约-金科玖珑悦-三室两厅一厨两卫-133㎡-装修实景图装修-三室两厅-现代简约

现代简约-金科玖珑悦-三室两厅一厨两卫-133㎡-装修实景图装修-三室两厅-现代简约

现代简约-金科玖珑悦-三室两厅一厨两卫-133㎡-装修实景图装修-三室两厅-现代简约

*(网友评论,不代表锦华装修观点)

评论

最新活动

活动时间:2025

活动地点:锦华装饰家居生活体验馆

在线咨询

咨询热线15250817358

本场活动已报名网友

21

即刻报名 >

该设计师其它作品

  • 品质之选

    江苏家装示范品牌

  • 设计专家

    代表地区优秀设计声音

  • 放心工程

    集25年工程管理经验之大成

  • 全案管家

    省时、省力更省心