本案是一套精装房的设计改造项目,通过对空间,材质,色彩和光影的精妙把控,成功塑造了一个现代,轻奢且满足人文关怀的居住环境。它不仅是一个满足功能需求的住所,更是一个可以让人放松身心,享受生活的精神空间。
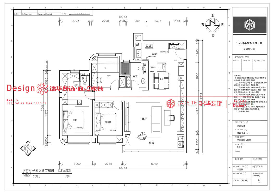
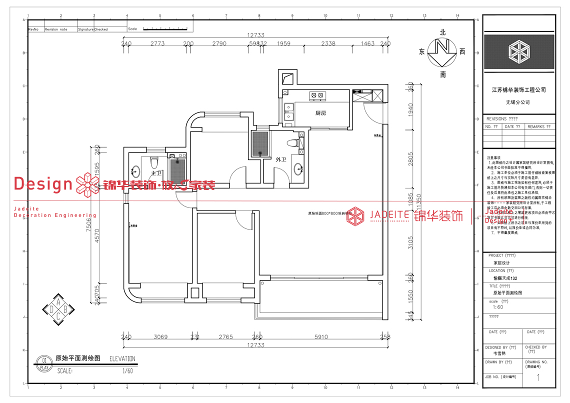
原精装入户是厨房的一堵墙,通过结构改造(但保留全套橱柜)打通了空间界限,让厨房从一个封闭的作业区,转变为一个集烹饪,社交,美学于一体的家庭核心区,也相当于打通了空间的任督二脉,彻底改变了空间格局与居住体验。




















江苏家装示范品牌
代表地区优秀设计声音
集28年工程管理经验之大成
省时、省力更省心
| 走进锦华 | 设计团队 | 作品列表 | 户型解析 | 装修百科 |
关注锦华公众号
|
浏览手机官网 |
全国热线 15250817358 |
||||||||||
| 新闻列表 | 锦华文化 | 堂杰国际设计 | 锡东店 | 极简 | 中古 | 半岛 | 常见问题 | ||||||||||
| 全国分公司 | 锦华招聘 | 滨湖店 | 旗舰店 | 法式 | |||||||||||||
| 锦华简介 | 联系我们 | 新汇店 | 凤凰店 | 欧式古典 | 北欧 | 凤鸣云庐 | |||||||||||
| 资质荣誉 | 法律声明 | 扬名店 | 江阴(靖江) | 美式田园 | 新古典 | 锦上荣曜 | |||||||||||