本设计针对140㎡的大户型尺度,以轻奢现代为核心,结合空间的开阔性与功能的精细化,通过材质碰撞、色彩层次与动线规划,打造出兼具品质感与实用性的现代居住空间,既满足多人家庭的生活需求,又彰显简约而精致的审美。
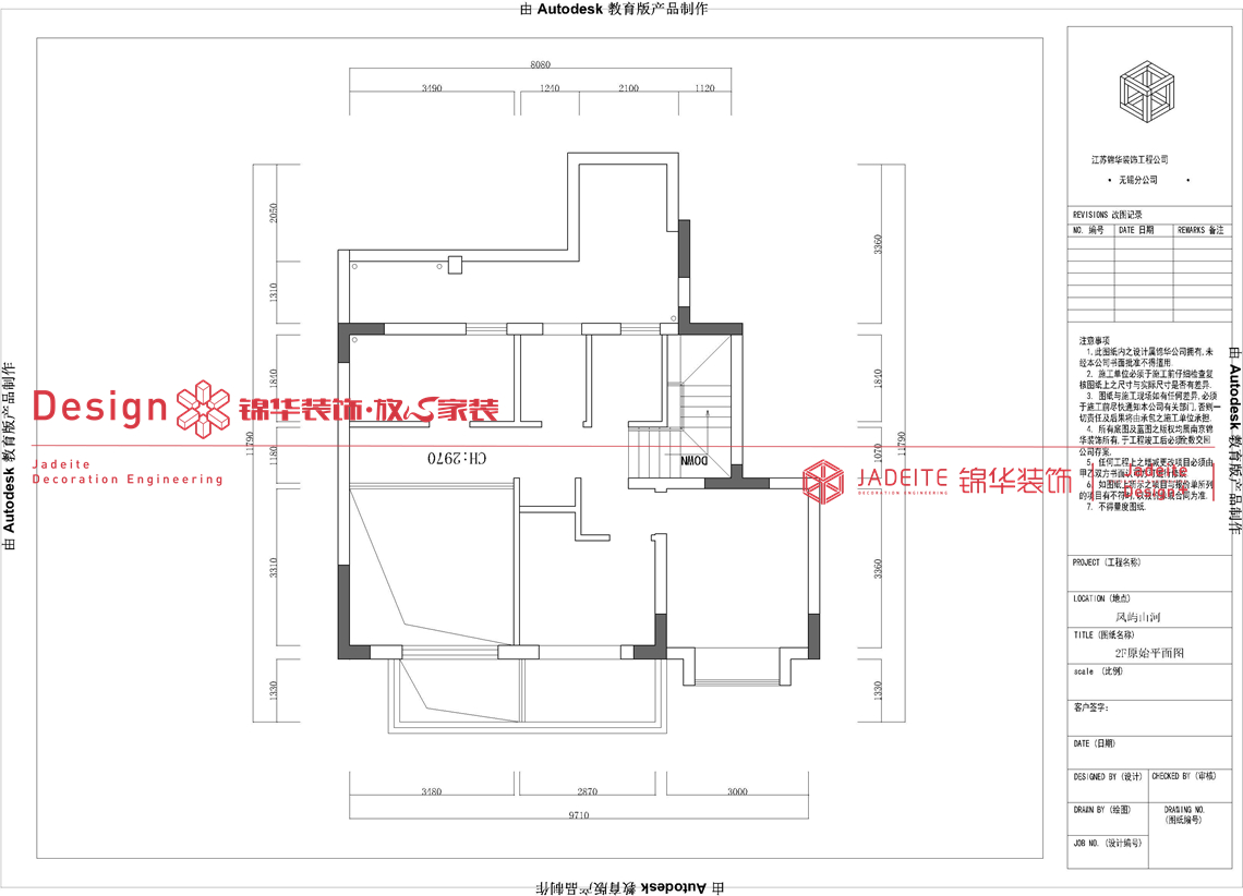
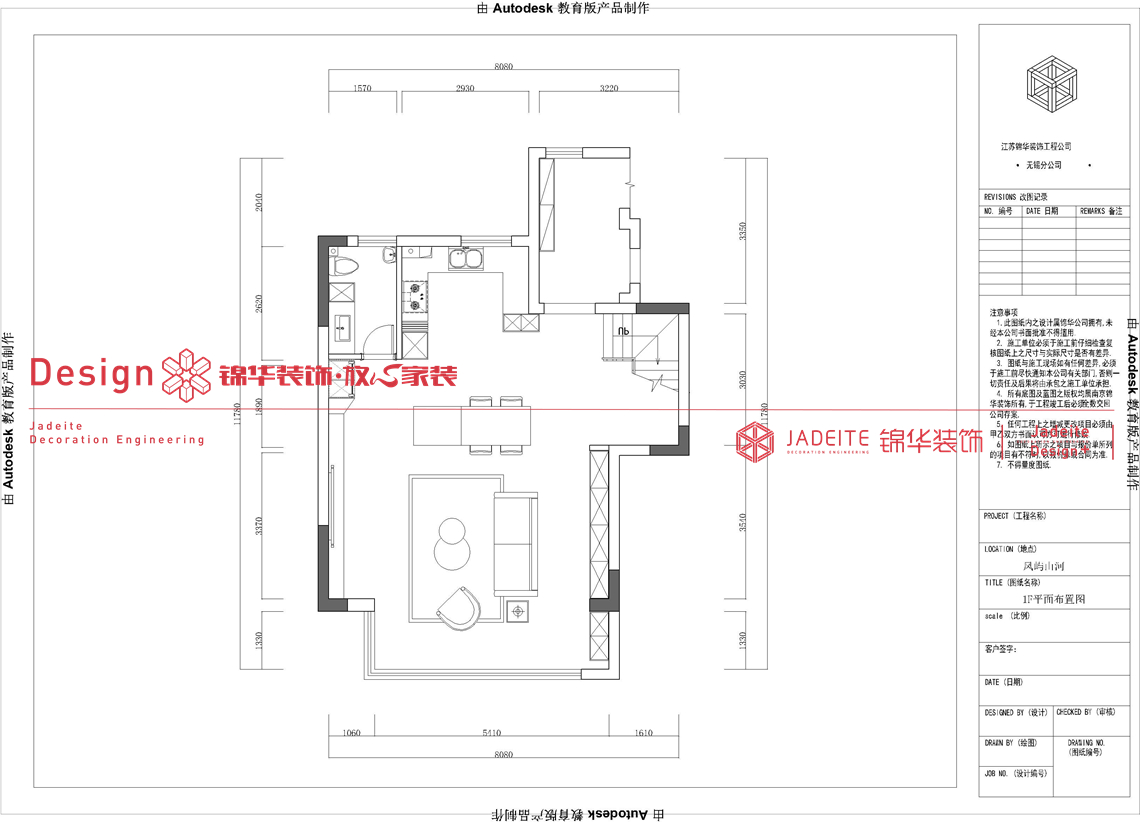
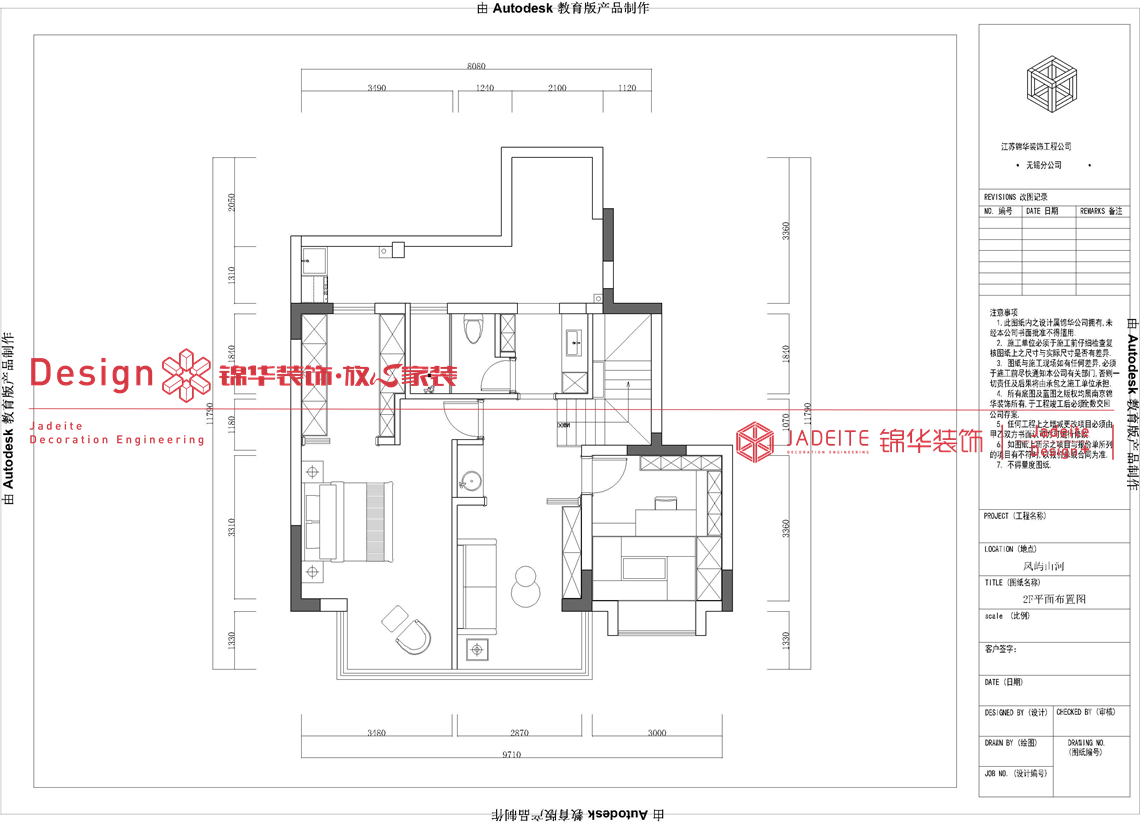
一、空间布局
1. 大开放+巧分区:客餐厨采用一体化开放式设计,消弭空间边界,让140㎡的公共区域更显通透大气;同时利用家具(如沙发、餐桌)与柜体的自然分隔,明确客厅、用餐、西厨的功能边界,兼顾互动性与独立性。
2. 功能复合化:在客厅旁设置休闲互动区,餐厨区衔接西厨中岛与嵌入式厨电区,实现烹饪、用餐、社交的多元融合;并通过定制柜体整合收纳与家电嵌入,最大化利用空间。
3. 动线优化:梳理入户、客餐、厨卫的动线,减少空间折返,让家人日常活动更流畅;同时预留出充足的通道与活动空间,适配大户型的居住舒适度。
二、色彩搭配
1. 基底色:以米白+浅灰为空间主调,墙面选用米白色哑光材质,地面通铺浅灰色高光大理石纹瓷砖,奠定简约干净的基底,同时高光材质提升空间的精致感与采光效果。
2. 对比色:深咖色皮质沙发、深灰色嵌入式柜体形成视觉对比,增强空间层次感;少量焦糖色、酒红色软装(如茶几装饰、坐墩)作为点睛色,打破单调,注入轻奢活力。
3. 柔化色:木质纹理的餐椅、金属细框的装饰细节,柔化硬质材质的冷硬感,为现代空间增添温润的生活气息。
三、材质与细节
1. 地面与台面:采用大尺寸浅灰色高光大理石瓷砖通铺,餐桌、中岛选用岩板台面,兼具耐磨、易清洁的实用属性与高端的视觉质感。
2. 柜体与家具:定制哑光烤漆柜体(米白+深灰)搭配玻璃柜门与金属拉手,沙发选用头层牛皮材质,茶几结合大理石、金属与布艺元素,通过材质碰撞凸显现代轻奢的质感。
3. 灯光设计:采用无主灯设计,结合筒灯、线性灯、氛围灯带与吊灯,分层打造基础照明、重点照明与氛围照明,适配不同场景的光环境需求;同时利用灯光勾勒柜体与空间轮廓,强化现代设计的线条感。





























江苏家装示范品牌
代表地区优秀设计声音
集28年工程管理经验之大成
省时、省力更省心
| 走进锦华 | 设计团队 | 作品列表 | 户型解析 | 装修百科 |
关注锦华公众号
|
浏览手机官网 |
全国热线 15250817358 |
||||||||||
| 新闻列表 | 锦华文化 | 堂杰国际设计 | 锡东店 | 极简 | 中古 | 美的云璟 | 常见问题 | ||||||||||
| 全国分公司 | 锦华招聘 | 滨湖店 | 旗舰店 | 法式 | |||||||||||||
| 锦华简介 | 联系我们 | 新汇店 | 凤凰店 | 欧式古典 | 北欧 | 中信云上都会 | |||||||||||
| 资质荣誉 | 法律声明 | 扬名店 | 江阴(靖江) | 美式田园 | 新古典 | 中信泰富·玖映蠡湖 | |||||||||||