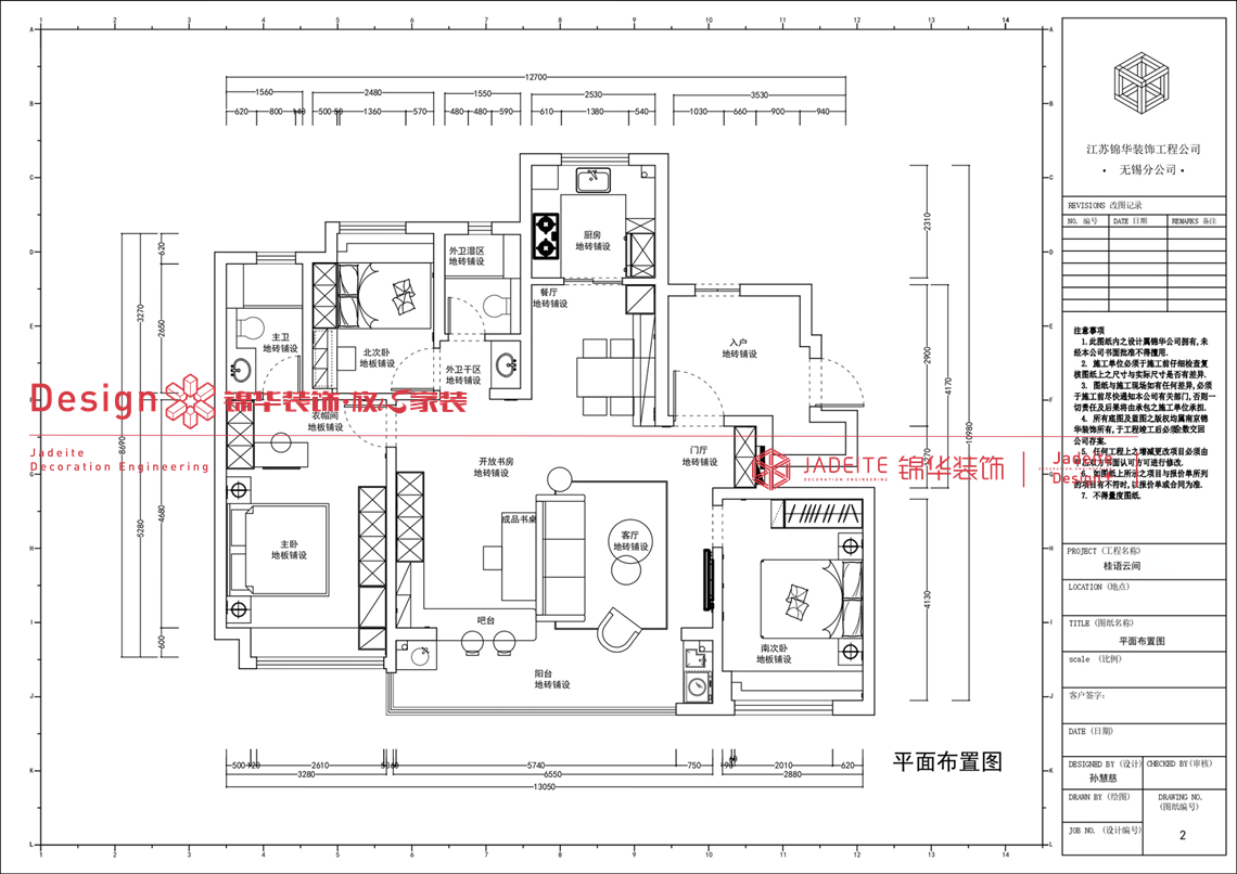
19年的房子是我们装修的,中间断断续续知道在看房子要置换改善,24年买了新房就立即委托了我们代为装修。希望在原来那套房子的的基础上,新家增设充足的收纳,添置水吧台和开放书房的功能。因为新房交付是精装房,要结合原有硬装基调做搭配,所以根据现有棕色木门、中灰色花纹地砖,融入黑白灰中和一下木色。凸显材质质感和精致度。
原有入户门厅空间并不大,考虑整体性入户鞋柜门板和背景做同色,弱化块面拼接,转角也是同色背景门板连接电视背景做过渡。原有电视背景中房门比较突兀而且背景墙尺寸短,通过隐形门去增强空间感和隐藏的效果,电视我们也选择了可移动电视支架更加节省空间和便捷。
业主平时在家偶尔需要加班,也喜欢喝咖啡。所以我们在开放式书桌边上设置了吧台和边柜满足需求,也可以解决书桌电脑用电问题。因为精装房交付有地暖且客餐厅是地砖所以没办法增加地插,电源增设在水吧台侧面。阳台移门拆除同色地砖通铺视野叶更加开阔。
业主单身自己住,父母偶尔会从老家来,平时不怎么开火在家吃,餐桌收纳在餐边柜里,这样动线空间更宽敞。
主卧不想要一进门太拥挤,但是卫生间门对着床,我们通过长虹玻璃做隔断解决这个问题。梳妆台和衣帽换洗柜也设置在这个位置,平时洗漱更换也便捷,进门视野也更开阔。考虑充足的收纳,原有房间进深有限,所以我们没有买成品床而是做半高靠背充当床靠和成品床架,节省的空间做了一排床尾柜结合飘窗做了斗柜,满足了业主的常规收纳需求。
丰富的家居软装体现了业主具有较高的生活品味,也对美好生活的无限向往。




















江苏家装示范品牌
代表地区优秀设计声音
集28年工程管理经验之大成
省时、省力更省心
| 走进锦华 | 设计团队 | 作品列表 | 户型解析 | 装修百科 |
关注锦华公众号
|
浏览手机官网 |
全国热线 15250817358 |
||||||||||
| 新闻列表 | 锦华文化 | 堂杰国际设计 | 锡东店 | 极简 | 中古 | 美的云璟 | 常见问题 | ||||||||||
| 全国分公司 | 锦华招聘 | 滨湖店 | 旗舰店 | 法式 | |||||||||||||
| 锦华简介 | 联系我们 | 新汇店 | 凤凰店 | 欧式古典 | 北欧 | 中信云上都会 | |||||||||||
| 资质荣誉 | 法律声明 | 扬名店 | 江阴(靖江) | 美式田园 | 新古典 | 中信泰富·玖映蠡湖 | |||||||||||