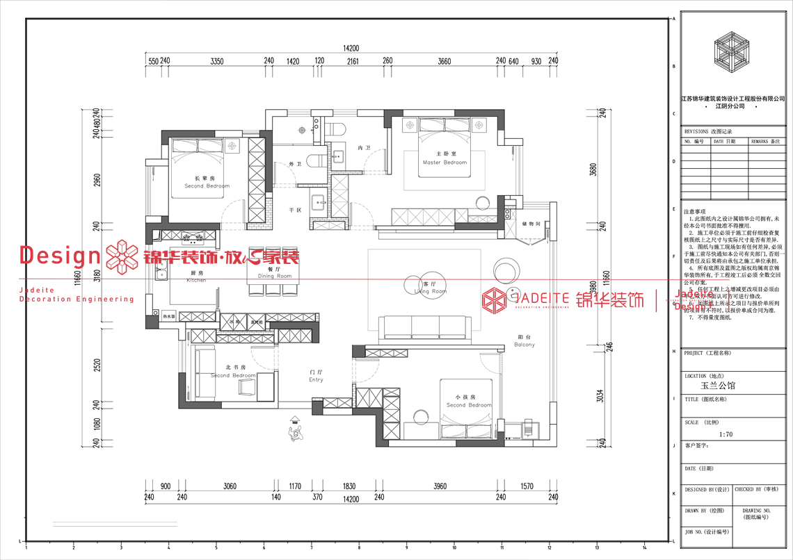
入户与动线框架
入户玄关设置缓冲空间,衔接北书房与公共区,实现“入户收纳+空间过渡”;
动线分为公共动线(入户→厨房→餐厅→客厅)与私密动线(客厅→过道→卧室区),双动线无交叉,保障动区互动与静区隐私的独立。
功能分区:公共区+私密区+辅助区
(一)公共活动区:客餐厨+阳台(互动核心)
1. 厨房:采用封闭布局(独立空间),避免油烟扩散;操作台面呈L型,“洗-切-炒”动线流畅,预留冰箱、橱柜空间,适配高频烹饪需求。
2. 餐厅:位于厨房与客厅之间,适配8人位餐桌,兼顾家庭用餐与小型社交;衔接过道,同时服务公共区与卧室区,是空间动线的中转枢纽。
3. 客厅:客厅开间尺度充足,搭配大面积阳台(标注“阳台”),拓展公共活动边界;阳台可作为休闲区/轻家政区,兼顾观景与实用。
(二)私密休憩区:四卧+双卫(全龄适配)
4.主卧套间:配置“卧室+内卫+独立收纳”,内卫(标注“内卫”)实现干湿分离,主卧与内卫动线最短;卧室预留大床+梳妆台布局,保障主人居住仪式感。
三、设计亮点与适配性
1. 空间仪式感:客厅与阳台的连通、主卧套间的独立布局,强化改善型住宅的居住品质;过道宽度充足,避免空间局促感,提升行走与通行舒适度。
2. 全龄适配性:四卧室配置覆盖“三代同堂+儿童成长”需求;双卫分流、长辈房近卫等细节,适配老人与儿童的生活习惯。
3. 采光通风:客厅、卧室、阳台均有对外开窗,自然采光面广;厨房、卫生间通过布局优化保障通风,减少潮湿与异味。








江苏家装示范品牌
代表地区优秀设计声音
集25年工程管理经验之大成
省时、省力更省心
| 走进锦华 | 设计团队 | 作品列表 | 户型解析 | 装修百科 |
关注锦华公众号
|
浏览手机官网 |
全国热线 15250817358 |
||||||||||
| 新闻列表 | 锦华文化 | 堂杰国际设计 | 锡东店 | 极简 | 中古 | 美的云璟 | 常见问题 | ||||||||||
| 全国分公司 | 锦华招聘 | 滨湖店 | 旗舰店 | 法式 | |||||||||||||
| 锦华简介 | 联系我们 | 新汇店 | 凤凰店 | 欧式古典 | 北欧 | 中信云上都会 | |||||||||||
| 资质荣誉 | 法律声明 | 扬名店 | 江阴(靖江) | 美式田园 | 新古典 | 中信泰富·玖映蠡湖 | |||||||||||