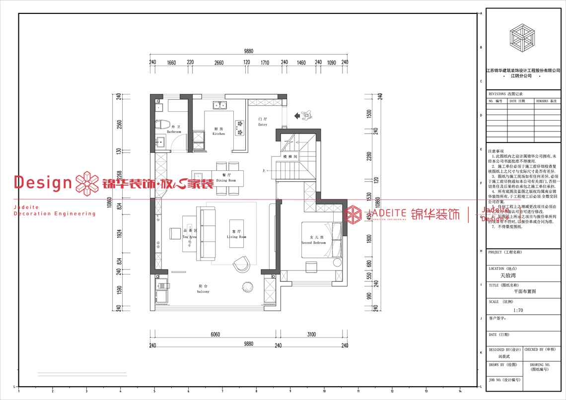
一层(公共活动层)
1. 功能布局:
以“客餐厨+次卧”为核心,属于家庭公共活动区;
厨房与餐厅相邻,形成“餐厨一体化”动线,方便备餐与用餐;
客厅连接阳台,拓展了公共空间的采光与活动尺度;
次卧靠近入户区域,可作为客卧或多功能房,兼顾隐私与便利性。
2. 空间特点:
开放式客餐厨布局,增强空间通透感;
入户区域预留玄关,实现“进门过渡”功能;
动线简洁(入户→厨房→餐厅→客厅),无明显空间浪费。
二层
1. 功能布局:
以“主卧套间+次卧+书房”为核心,属于家庭私密区;
主卧配备独立卫浴、衣帽间,形成完整的“主人私域”;
书房与次卧相邻,可灵活转换为儿童房、储物间等;
增设休闲区,作为二层的“轻活动空间”,缓冲休憩与动线的节奏。
2. 空间特点:
功能分区明确(睡眠、收纳、办公),保障私密感;
主卧套间的“卫浴+衣帽间”配置,提升居住舒适度;
楼梯衔接上下层,动线集中且不干扰各功能区。
整体设计逻辑
分层动静分区:一层承载公共活动,二层聚焦私密休憩,避免生活场景的互相干扰;
尺度适配功能:公共区(客餐厨)尺度开阔,私密区(卧室)尺度舒适,空间利用率较高;
动线效率优先:上下层动线均围绕核心功能区布局,减少无效行走。









江苏家装示范品牌
代表地区优秀设计声音
集25年工程管理经验之大成
省时、省力更省心
| 走进锦华 | 设计团队 | 作品列表 | 户型解析 | 装修百科 |
关注锦华公众号
|
浏览手机官网 |
全国热线 15250817358 |
||||||||||
| 新闻列表 | 锦华文化 | 堂杰国际设计 | 锡东店 | 极简 | 中古 | 美的云璟 | 常见问题 | ||||||||||
| 全国分公司 | 锦华招聘 | 滨湖店 | 旗舰店 | 法式 | |||||||||||||
| 锦华简介 | 联系我们 | 新汇店 | 凤凰店 | 欧式古典 | 北欧 | 中信云上都会 | |||||||||||
| 资质荣誉 | 法律声明 | 扬名店 | 江阴(靖江) | 美式田园 | 新古典 | 中信泰富·玖映蠡湖 | |||||||||||