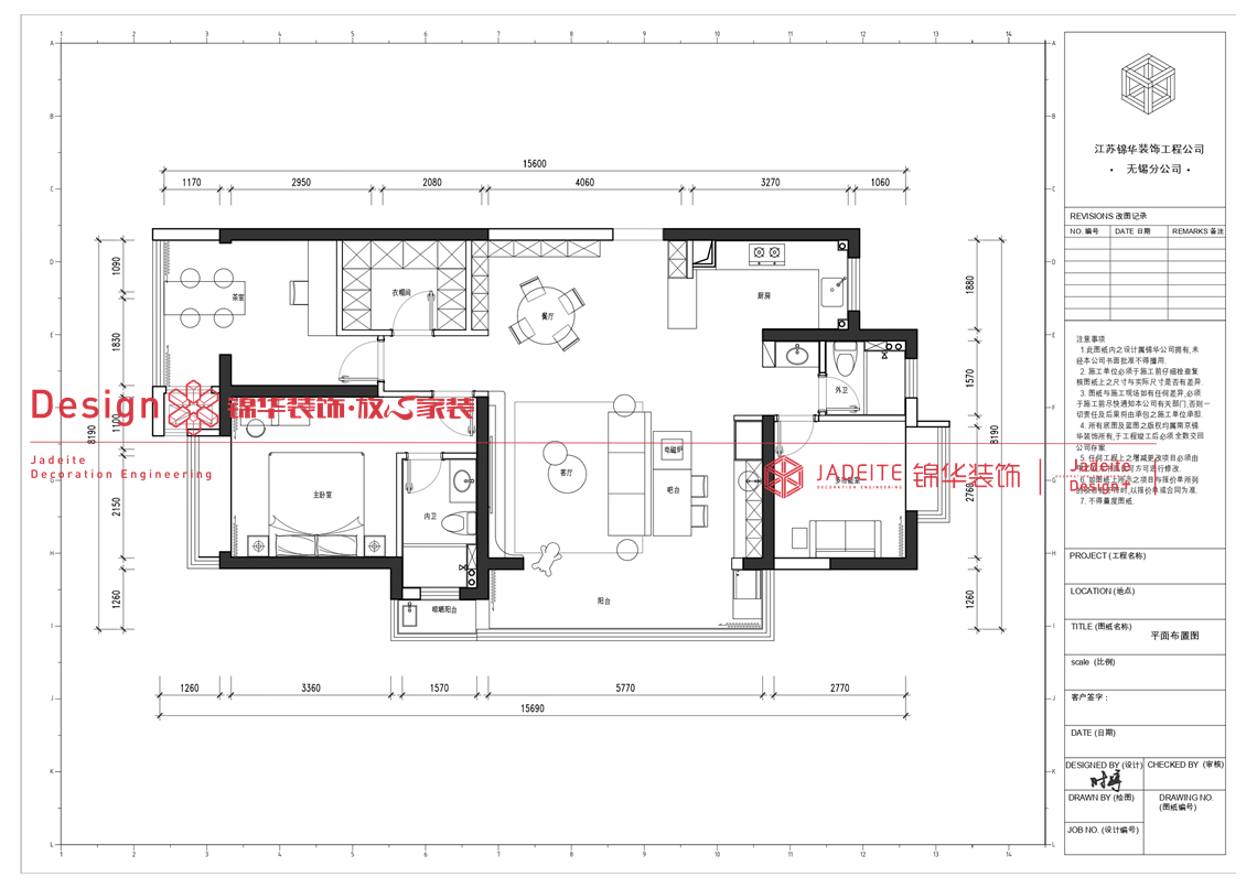
黑色柜门加上石膏线条点缀的法式复古风格,软装搭配也很梦幻的感觉
将原户型进门右手边全部改造,户型变得更加通透,加上开放式厨房包括浓郁法式复古软装搭配点缀使得整个空间通透大气复古


















江苏家装示范品牌
代表地区优秀设计声音
集25年工程管理经验之大成
省时、省力更省心
| 走进锦华 | 设计团队 | 作品列表 | 户型解析 | 装修百科 |
关注锦华公众号
|
浏览手机官网 |
全国热线 15250817358 |
||||||||||
| 新闻列表 | 锦华文化 | 堂杰国际设计 | 锡东店 | 极简 | 中古 | 美的云璟 | 常见问题 | ||||||||||
| 全国分公司 | 锦华招聘 | 滨湖店 | 旗舰店 | 法式 | |||||||||||||
| 锦华简介 | 联系我们 | 新汇店 | 凤凰店 | 欧式古典 | 北欧 | 中信云上都会 | |||||||||||
| 资质荣誉 | 法律声明 | 扬名店 | 江阴(靖江) | 美式田园 | 新古典 | 中信泰富·玖映蠡湖 | |||||||||||