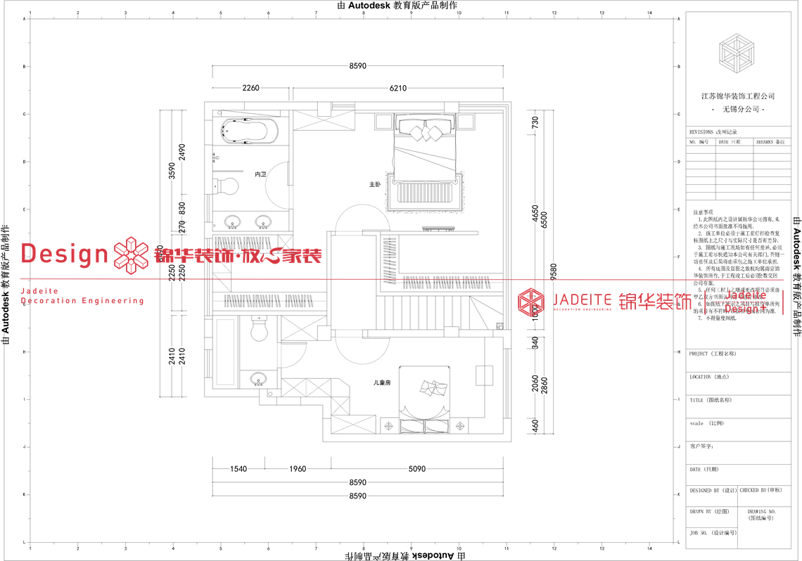
本案整体呈现现代意式轻奢风,沉静的高级感自带霸总氛围感,室内空间通过线条的勾勒,融合内敛木色与石材的视觉传达,呈现奢而不繁的视觉效果,演绎不费力而恰到好处的生活美学。























江苏家装示范品牌
代表地区优秀设计声音
集25年工程管理经验之大成
省时、省力更省心
| 走进锦华 | 设计团队 | 作品列表 | 户型解析 | 装修百科 |
关注锦华公众号
|
浏览手机官网 |
全国热线 15250817358 |
||||||||||
| 新闻列表 | 锦华文化 | 堂杰国际设计 | 锡东店 | 极简 | 中古 | 仁恒海和院 | 常见问题 | ||||||||||
| 全国分公司 | 锦华招聘 | 滨湖店 | 旗舰店 | 法式 | |||||||||||||
| 锦华简介 | 联系我们 | 新汇店 | 凤凰店 | 欧式古典 | 北欧 | 中信云上都会 | |||||||||||
| 资质荣誉 | 法律声明 | 扬名店 | 江阴(靖江) | 美式田园 | 新古典 | 熙悦春秋 | |||||||||||